TRITON 19" jednodílný rozvaděč 12U/400mm
Popis a parametry
TRITON 19" jednodílný rozvaděč 12U/400mm
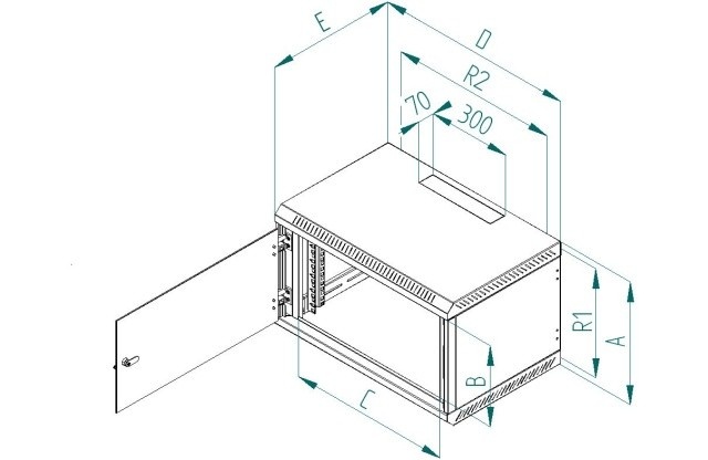
Rozvaděč Delta B je celosvařený nástěnný jednodílný rozvaděč s celoskleněnými dveřmi, které je možné díky masivním pantům otevřít pod úhlem téměř 180°. Důležitou součástí výrobku jsou otvory pro kabely, které jsou umístěny na horní a dolní stěně. Další dva otvory jsou umístěny na zadní stěně rozvaděče. Otvory jsou zaceleny vylamovacími záslepkami, které je možné vylomit s pomocí např. šroubováku. 19“ zařízení se instalují na vertikální lišty, které je možné plynule natavit podle potřeby do hloubky těla rozvaděče. Díky perforaci je zajištěna přirozená cirkulace vzduchu a chlazení komponentů. Přesné rozměry a další technické údaje jsou uvedeny níže (hodnoty R1 a R2 označují rozteče montážních otvorů pro zavěšení rozvaděče na zeď). Maximální zatížení rozvaděče je 30 kg. Rozměry: A – 635 mm B – 530 mm C – 490 mm D – 600 mm E – 395 mm R1 – 859 mm R2 – 420 mm Hmotnost – 20,5 kg Příbal: Klíč - přední dveře 2x Vrut 6x50 4x Podložka 6,6 4x Hmoždinka 10 4x Plastová podložka 8x Plovoucí matice M6 8x Šroub M6x16 8x Protiprachová záslepka 1x.
ParametryPorovnání
Typ datového rozvaděče
Nástěnné 19"
Hloubka (mm)
400
Šířka (mm)
600
Výška rozvaděče (U)
12
TRITON 19" jednodílný rozvaděč 12U/400mm
Naposledy navštívené








